已被推荐至便民首页,奖励虾油100
本帖被 房子2012 执行加亮操作(2015-06-29)
楼层直达,更新不断
-
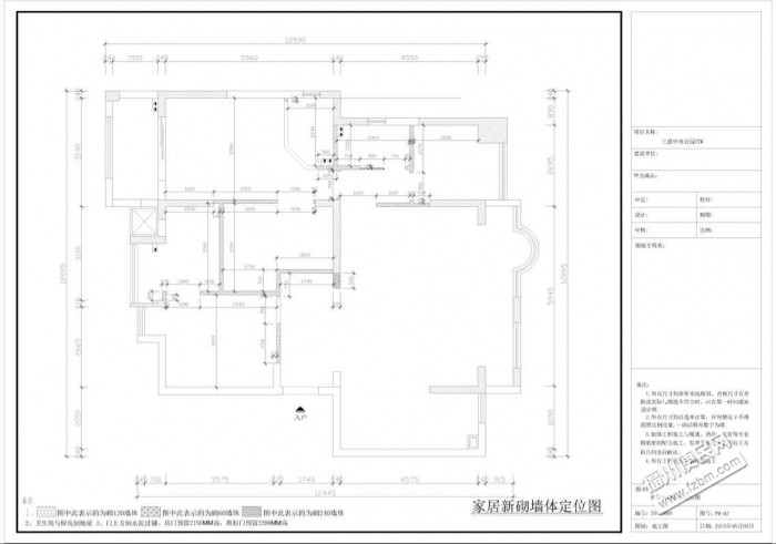
第20楼 开工大吉!铲灰,敲墙部分 (更新:2015-06-25 13:06:10)
-
第29楼 砌墙养护工作进行时。。。 (更新:2015-07-19 01:44:21)
-
第34楼 下定整体厨柜 (更新:2015-07-31 00:23:41)
-
第35楼 海峡建材城活动购入ROBAM厨电五件套 (更新:2015-07-31 00:44:19)
-
第40楼 水电开工前,各种网购海淘材料设备 (更新:2015-08-06 01:39:29)
-
第41楼 水路,电路,改造 (更新:2015-08-06 01:55:03)
-
第54楼 中央空调安装 (更新:2015-08-22 23:34:35)
-
第61楼 管道隔音DIY (更新:2015-08-29 23:43:57)
-
第65楼 木工厂考察 (更新:2015-09-03 23:51:49)
-
第68楼 刷防水闭水试验 (更新:2015-09-10 20:51:34)
-
第69楼 木作吊顶开工 (更新:2015-09-10 21:05:03)
-
第108楼 主卫铺设方案确定 (更新:2015-10-09 11:42:55)
-
1赞
-
0汗
-
0怒





























2015-06-29 回复
开工仪式没有很不一样哇,哈哈
2015-07-02 回复
重点就省略没有拍,你懂得!哈哈哈